System Cherry
Die Modelle Cherry 320 und Cherry 350 wurden speziell für den professionellen Kirschenanbau entwickelt. Die Stahlpfosten werden mit Magerbeton im Boden fixiert und können bereits bei der Pflanzung gesetzt werden – inklusive Löcher für Spanndrähte als Erziehungsgerüst. Der Dachaufbau erfolgt bei Bedarf, typischerweise nach 2–3 Jahren, wenn die Erträge stimmen. So bleiben Sie flexibel in der Investitionsplanung und profitieren von maximaler Funktionalität zur richtigen Zeit.
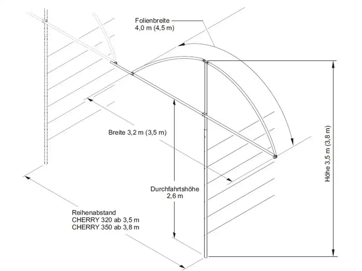
CHERRY 320
Anwendung: Kirschen
Schirmbreite: 3,2 m
Firsthöhe: 3,5 m
Durchfahrtshöhe: 2,6 m
Reihenabstand: ab 3,5 m
Länge pro Element: 4,0 m
Pfostendurchmesser: 1¼“ (46 mm)
Rohrdurchmesser: ¾“ (26 mm)
Artikelnummer: Cherry320
CHERRY 350
Anwendung: Kirschen
Schirmbreite: 3,5 m
Firsthöhe: 3,8 m
Durchfahrtshöhe: 2,6 m
Reihenabstand: ab 4,0 m
Länge pro Element: 4,0 m
Pfostendurchmesser: 1¼“ (46 mm)
Rohrdurchmesser: ¾“ (26 mm)
Artikelnummer: Cherry350
Mehrjahresfolie
Material: PE 5% UV resistent
Dicke: 0,2 mm (200 my)
Folienbreite: 4,0 m (Cherry 320) / 4,5 m (Maxi 350)
Folienlänge: Reihenlänge + 3,0 m
Artikelnummer: REFolie
Häufige Fragen
Warum ist eine Regenüberdachung im modernen Kirschenanbau sinnvoll?
Süsskirschen neigen kurz vor der Ernte bei Regen zum Aufplatzen (Rissbildung). Das Herry-Regendach hält die Bäume trocken, reduziert Ertragsverluste und sorgt für höhere Marktfähigkeit – mehr verkaufsfähige Früchte in gleichbleibender Qualität.
Wie wirkt das Regendach Cherry auf Mikroklima und Pflanzengesundheit?
Die Anlage bleibt gut belüftet, es entsteht ein gesundes Mikroklima. Durch weniger Benetzung der Laubwand wird der Druck von Pilzkrankheiten wie Monilia oder Blätterflecken deutlich reduziert.
Wie funktioniert der Etappenaufbau?
Bereits bei Neupflanzung können Stahlpfosten gesetzt und als Gerüst mit Drahtführungen für die Baum-Erziehung genutzt werden. Die Dachfolie wird erst gespannt, wenn die Bäume im Ertrag stehen – typischerweise nach 2–3 Jahren. So investieren Sie genau dann, wenn sich der Ertrag abzeichnet, und schonen in den ersten Jahren das Budget.
Welche Vorteile bringt der Etappenaufbau in der Praxis?
Budgetschonender Start, früh nutzbares Gerüst für die Erziehungsdrähte, und das Regendach ist pünktlich zur ersten grösseren Ernte einsatzbereit – für planbare Erntefenster und stabile Qualitäten.
Gibt es Praxiserfahrungen und Referenzen?
Über 400 Anlagen europaweit – viele davon in Kirschenplantagen – bestätigen die Zuverlässigkeit. Anwender berichten von deutlich weniger Regenausfall und besser planbaren Erntezeiten.
Lässt sich das Regendach Cherry mit Insektenschutz kombinieren?
Ja. Das System ist mit Insektenschutznetzen kombinierbar (z. B. gegen Kirschessigfliegen) – für eine komplette Schutzlösung Ihrer Anlage.
Gibt es eine Holzpfahl-Variante?
Ja – entdecken Sie das Regendach Cherry Holz: mit Holzpfählen für hohe Windstabilität und flexible Anwendung.
